STUDIO FRI

MASONWOOD, FULWOOD

Bungalow to House Conversion in Fulwood, Preston

This project at 7 Masonwood, Fulwood began with a familiar challenge for many bungalow owners: a single-storey layout that no longer supports how the household needs to function. While bungalows often offer generous footprints, their long-term flexibility is limited once family needs change.

Rather than extending laterally and compromising garden space, the strategy focused on whether the bungalow could be re-structured vertically to create a more legible, future-proof home – without disrupting the calm suburban character of the cul-de-sac.

Planning-Led Approach to a Bungalow to House Conversion

A previous planning permission for the same form of bungalow-to-house conversion had been granted by Preston City Council in 2011. Studio FRI reassessed this consent against the current planning context, confirming that there had been no material changes to the street, site constraints or surrounding character since approval. This allowed the project to proceed from a position of certainty, reinforcing the principle that upward extension was already established as an acceptable form of development at the site

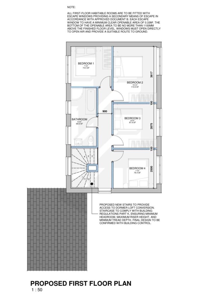
First-Floor Extension — Creating a Proper Bedroom Storey

The introduction of a full first floor allowed the property to transition from a constrained bungalow into a coherent two-storey house. The new upper level accommodates four bedrooms and a dedicated master bathroom, establishing a clear and functional sleeping storey. This reorganisation was critical. By relocating all bedroom accommodation to the first floor, the house gains a spatial clarity that is rarely achievable through piecemeal bungalow extensions. It also reflects how two-storey family homes are typically assessed by planning authorities – as complete, settled dwellings rather than incremental adaptations.

Ground Floor Reconfiguration Through Vertical Separation

With all bedrooms moved upstairs, the ground floor could be re-planned entirely around the client’s day-to-day requirements. Living spaces were reconfigured to improve flow, usability and connection to the garden, allowing the ground floor to operate as a genuinely functional living environment rather than a compromised mix of uses. This separation between private and shared spaces is one of the key advantages of bungalow to house conversions and often represents the single biggest improvement in how a home functions over time.

Considering a bungalow to house conversion in Lancashire or the North west?

Studio FRI helps homeowners understand what their bungalow can become, providing clarity where projects are complex and confidence where decisions matter.

Bungalow to house conversion, Fulwood, Preston
Bungalow to house conversion, Fulwood, Preston
Bungalow to house conversion, Fulwood, Preston
Bungalow to house conversion, Fulwood, Preston

DISCUSS YOUR PROPOSAL

Whether you’re considering a new home, an extension, or a complex planning proposal, Studio FRI offers clear guidance and measured design insight from the outset. Get in touch to discuss your project and understand the best path forward with confidence.

STUDIO FRI
Type of Project
Services Required