STUDIO FRI

HIGHRIGG DRIVE BROUGHTON

A Georgian-Inspired New Build with Enduring Presence

Highrigg Drive is a refined private residence inspired by the discipline and proportion of Georgian architecture. Designed for contemporary family life, the house is calm, balanced, and deliberately restrained. Its presence feels established rather than new, shaped by clarity, proportion, and longevity rather than short-term trends. The architecture expresses quiet confidence. Every element has been carefully considered to ensure the house will endure both visually and practically over time. This is a home defined by restraint and resolution, where judgement leads design rather than overt statement.

Architectural Stewardship Beyond Design

Studio FRI was appointed to guide the project beyond the initial design stage. Our role included architectural stewardship through the Building Regulations process, the discharge of planning conditions, and the construction phase. Full Building Regulations approval was secured, providing certainty and direction as work progressed on site.

We acted as the architectural constant throughout the project. This ensured that proportion, detailing, and design intent were protected as the scheme moved from drawings to built form. Strong oversight at this stage was essential to prevent the gradual erosion of architectural quality.

Consultant Coordination and Regulatory Clarity

Studio FRI coordinated the wider consultant team, working closely with the structural engineer, site teams, Preston City Council Building Control, and other specialists. This integrated approach ensured that technical decisions, regulatory requirements, and construction realities remained aligned with the architectural vision.

By addressing challenges early and maintaining clear direction, the project progressed with control and confidence. Design integrity was preserved at every stage.

A Design-Led, Client-Focused Process

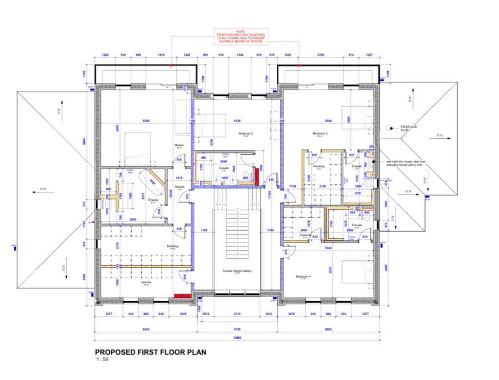
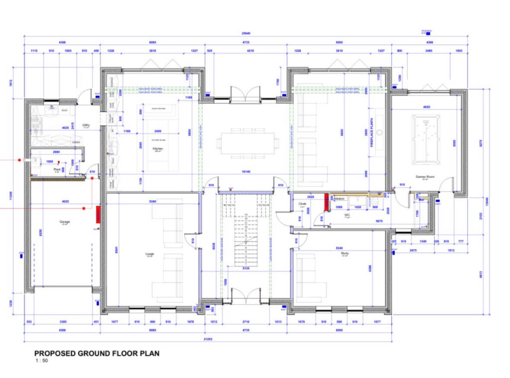
From the outset, the project was shaped through close collaboration with the client. The focus was not only on function, but on how the home should feel to live in over time. Classical principles of hierarchy and scale were carefully balanced with modern expectations of space, light, and flexibility.

Each room was designed with intention and purpose. Together, they form a coherent whole rather than a series of isolated spaces. The result is a home that supports daily life quietly and confidently, without sacrificing architectural order.

Judgement-Led Value Engineering

Value engineering was approached as a process of refinement, not reduction. Materials, detailing, and construction methods were carefully reviewed to improve buildability and long-term performance while preserving the elegance of the original design.

Investment was directed where it mattered most: structure, proportion, and longevity. This ensures the house will age with dignity and not reveal compromise over time.

Bespoke New-Build Architecture Across Lancashire

Highrigg Drive reflects Studio FRI’s approach to bespoke new-build residential architecture across Broughton, Preston, South Ribble, and the wider Lancashire area. We are trusted on projects where discretion, clarity, and experienced judgement are essential to delivering homes of lasting quality.

Studio FRI provides clarity where projects are complex and confidence where decisions matter.

Contact Studio FRI to begin a considered conversation.

High-quality architectural design by Studio FRI in Preston and across the North West, including bespoke residential homes, extensions, new builds, and commercial projects.
High-quality architectural design by Studio FRI in Preston and across the North West, including bespoke residential homes, extensions, new builds, and commercial projects.
High-quality architectural design by Studio FRI in Preston and across the North West, including bespoke residential homes, extensions, new builds, and commercial projects.
High-quality architectural design by Studio FRI in Preston and across the North West, including bespoke residential homes, extensions, new builds, and commercial projects.
High-quality architectural design by Studio FRI in Preston and across the North West, including bespoke residential homes, extensions, new builds, and commercial projects.

DISCUSS YOUR PROPOSAL

Whether you’re considering a new home, an extension, or a complex planning proposal, Studio FRI offers clear guidance and measured design insight from the outset. Get in touch to discuss your project and understand the best path forward with confidence.

STUDIO FRI
Type of Project
Services Required